JQDS-30 CNG系列加气机
![]()

JQDS-30 (双流量计双枪四显示) |

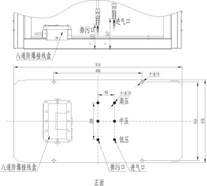
底座安装 (整机外型尺寸: 2100×1030×490) |
| 技术参数 |
» 准确度:±1.0%
» 重复性:≤0.5%
» 计量单位:加气量:kg或M3; 金额:元; 单价:元/kg或元/M3
» 额定流量:(0-30)kg/min
» 单次量程:(0-9900.00) M3或元
» 累计量:(0-99999999.99) M3或元
» 系统设计压力:27.5MPa
» 最大工作压力:25MPa
» 额定工作压力:20MPa
» 最小被测量:3kg或4M3
» 额定静态压力测试:37.5MPa
» 环境温度适应性:-25℃ - 55℃
» 相对湿度适应性:30%-90%
» 电源适应能力:AC220V(+10%,-15%),(50±1)Hz
» 防爆标志:Ex d ib mb ⅡB T4 Gb
» 防爆合格证:CCRI 16.3011
» 型式批准证书:2015F492-33
» 生产许可证:浙制3031028-2号
» 整机重量:约165 kg
» 电脑控制,电子计控装置能自动显示加气量和加气金额。
» 具有定金额、定加气量的预置加气功能。
» 当加满气时,具有自动停机功能;超时不加气也能自动停机,可设定大小流速保护。
» 断电后数据长期保存,并具有停电复显功能。
» 可以复显最近10次的加气数据,以备查验。
» 可以统计当班加气累计数值和汇总累计数值。
» 具有自动检测故障功能,能自动显示故障代码。
» 具有与其他设备通讯的能力,通讯方式有多种可选。
» 可以配备后台管理系统及IC卡操作系统,使加气站实现自动化管理。
» 具有拉断保护功能,保证汽车意外拖走加气枪时安全脱离并密封。
» 具有限流保护功能,保证加气安全。
» 具有自动温度补偿功能,能够查询补偿数值。
» 超细过滤,保证加气机重要部件使用寿命。
» 配备回流装置,方便整机调试。
» 键盘操作,功能丰富,可完成多种程序的设置及查询。
![]()